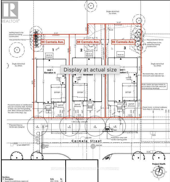
86,88,90 Carmela Avenue Richmond Hill, Ontario L4E 2V6

15,180 sqft

$2,188,000

ATTN BUILDERS AND INVESTORS** These fully-serviced residential 3 lots in the prestigious Oak Ridges community are perfect for builders and homeowners alike, with approved plans for a 3,700 SF detached house on every Lot. The lots have paid servicing and pre-approved architectural plans, including a separate basement entrance. Just apply for your building permit to get started! This premier location offers luxury living with convenient access to top-rated schools, parks, shopping, dining, and major transit routes. The serene neighbourhood, surrounded by mature trees and upscale residences, is ideal for your vision (id:62104)

Property Details

MLS® Number N13012248
Property Type Vacant Land
Community Name Oak Ridges

Building

Size Interior 15,180 Sqft
Utility Water Municipal Water

Land

Acreage No
Size Depth 120 Ft
Size Frontage 138 Ft
Size Irregular 138 X 120 Ft ; West 108, East 121
Size Total Text 138 X 120 Ft ; West 108, East 121
Zoning Description R4

https://www.realtor.ca/real-estate/29620642/868890-carmela-avenue-richmond-hill-oak-ridges-oak-ridges

Contact Us

Contact us for more information

Generating Captcha

Your Favourites

 

No Favourites Found