208 - 92 King Street E Toronto, Ontario M5C 2V8

4 Bedroom 2 Bathroom 900 - 999 sqft
Central Air Conditioning Forced Air

$3,100 Monthly

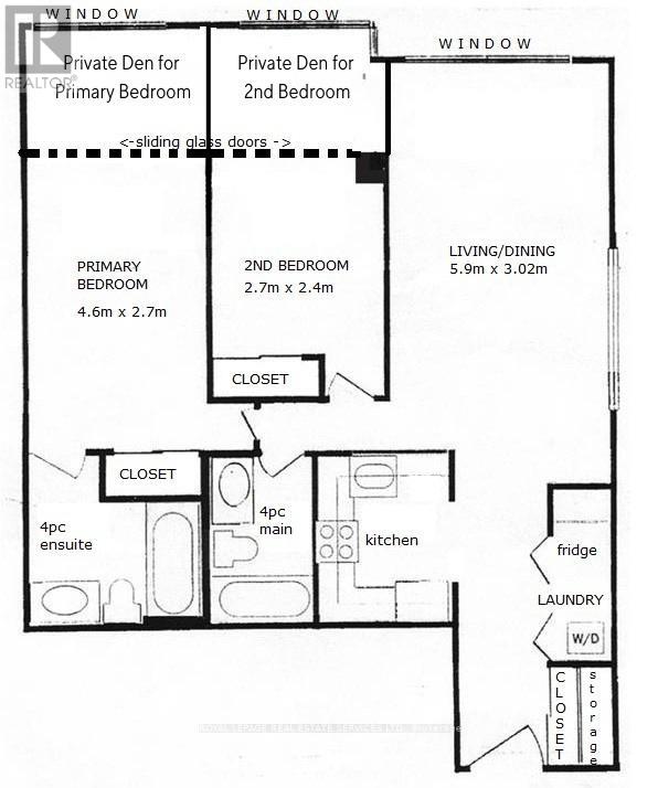
Welcome to a perfectly located downtown condo, offering the ultimate in convenience with transit right at your doorstep. This bright and spacious unit boasts over 900 sq. ft. of well-designed living space, ideal for urban living. Inside, you'll find two generously sized bedrooms, each with its own private den featuring glass sliding doors. These versatile spaces are perfect for use as home offices, relaxation areas, or additional living space. A secure but temporary divider separates the dens, allowing flexibility for your needs. Each den is bright and airy, featuring large picture windows with a stunning north exposure that fills the space with natural light. The unit also includes two full bathrooms, providing comfort and privacy for residents. The kitchen is roomy and functional, complete with ample counter space and a stylish butcher block countertop. Hardwood flooring throughout adds a clean, modern aesthetic that complements the bright and open layout. For your convenience, the unit comes equipped with a fridge, stove, dishwasher, microwave, washer, dryer, and window coverings. Don't miss the opportunity to live in this prime downtown location, where everything you need is just steps away. **EXTRAS** 24-hour concierge; rooftop deck with BBQs, Gym, Visitor Parking, Bike Storage ** photos are from previous listing ** (id:62104)

Property Details

MLS® Number C13006666
Property Type Single Family
Community Name Church-Yonge Corridor
Community Features Pets Allowed With Restrictions

Building

Bathroom Total 2
Bedrooms Above Ground 2
Bedrooms Below Ground 2
Bedrooms Total 4
Basement Type None
Cooling Type Central Air Conditioning
Exterior Finish Brick
Flooring Type Hardwood, Tile
Heating Fuel Natural Gas
Heating Type Forced Air
Size Interior 900 - 999 Sqft
Type Apartment

Parking

No Garage

Land

Acreage No

Rooms

Level Type Dimensions
Flat Living Room 5.9 m x 3.02 m
Flat Kitchen 3.7 m x 2.6 m
Flat Dining Room 5.9 m x 3.02 m
Flat Primary Bedroom 4.6 m x 2.7 m
Flat Den 2.7 m x 1.4 m
Flat Den 2.7 m x 1.4 m

https://www.realtor.ca/real-estate/29613855/208-92-king-street-e-toronto-church-yonge-corridor-church-yonge-corridor

Contact Us

Contact us for more information

Generating Captcha

Your Favourites

 

No Favourites Found