1103 - 859 The Queensway Toronto, Ontario M8Z 1N8

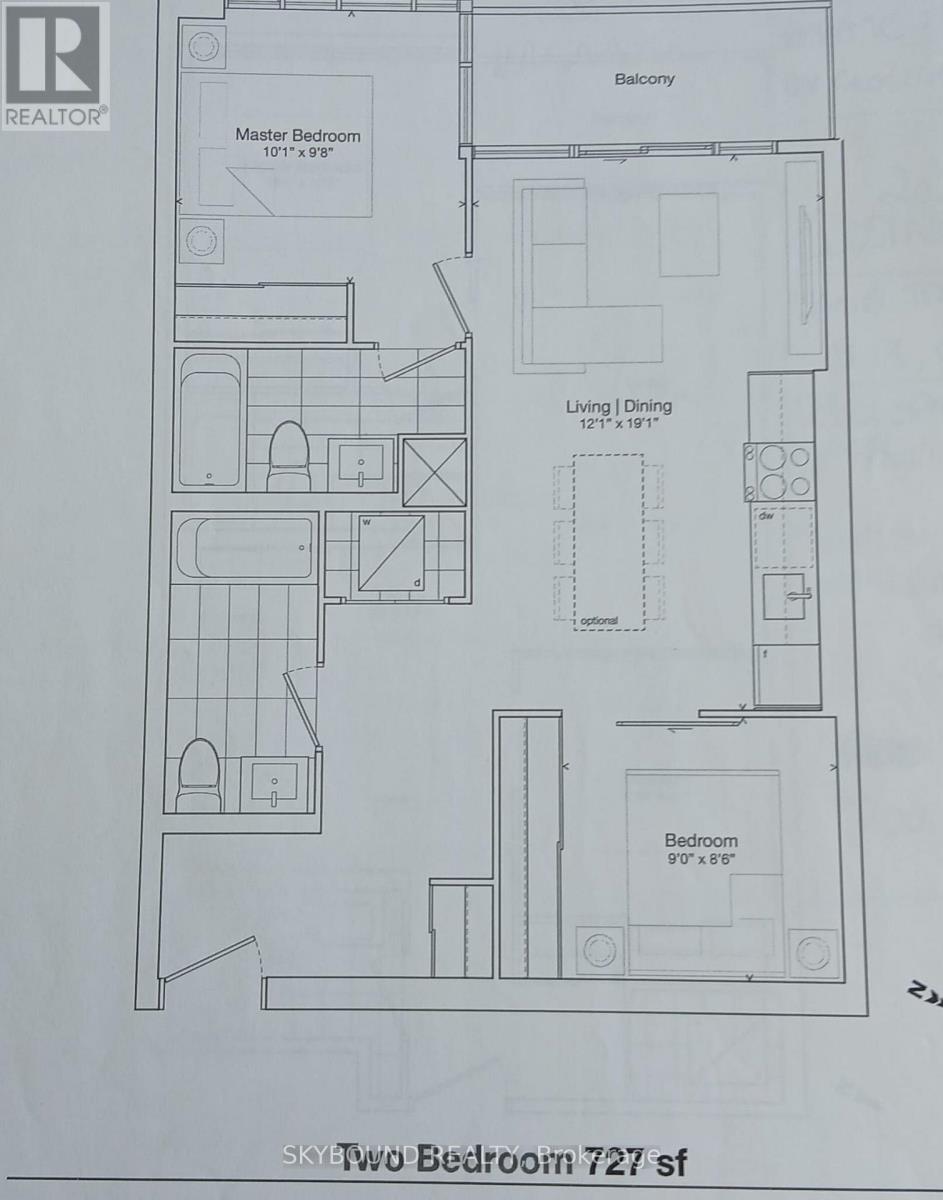
2 Bedroom 2 Bathroom 700 - 799 ft2
Central Air Conditioning Forced Air

$2,800 Monthly

859 West condos. Very safe building with 24hr security on duty. This Bright And Stylish In 2 Bedroom 2 Bath Condo, 10 Ft ceilings , Featuring Open-Concept Living And Dining Area, Gourmet Kitchen With Stainless Steel Appliances ,ensuite laundry.Laminate throughout and open balcony . The unit comes with 1 Parking Space. Moreover these extra features are Included with your rental for your use: Children's Play Area, Full-Size Gym, Outdoor Cabanas, BBQ Area, Outdoor Lounge. Very convenient location with Easy Access To Highways, Sherway Gardens, Steps From Coffee Shops, Grocery Stores, Costco, NoFrills, Schools, Public Transit. Tenants pay for electricity and Tenants' content and Liability Insurance . (id:62104)

Property Details

MLS® Number W12595608
Property Type Single Family
Community Name Stonegate-Queensway
Community Features Pets Not Allowed
Features Balcony, Carpet Free
Parking Space Total 1

Building

Bathroom Total 2
Bedrooms Above Ground 2
Bedrooms Total 2
Appliances Dishwasher, Dryer, Microwave, Stove, Washer, Refrigerator
Basement Type None
Cooling Type Central Air Conditioning
Exterior Finish Concrete
Heating Fuel Natural Gas
Heating Type Forced Air
Size Interior 700 - 799 Ft2
Type Apartment

Parking

Underground
Garage

Land

Acreage No

https://www.realtor.ca/real-estate/29156684/1103-859-the-queensway-toronto-stonegate-queensway-stonegate-queensway

Contact Us

Contact us for more information

Generating Captcha

Your Favourites

 

No Favourites Found